| 材料 |
?????? 介質溫度℃ |
材料 |
介質溫度℃ |
| 氯化聚氯乙烯(PVC-C) |
-20℃~+95℃ |
聚氯乙烯(PVC-U) |
-5℃~+45℃ |
| 增強聚丙烯(FRPP) |
-20℃~+120℃ |
均聚聚丙烯(PPH) |
-20℃~+110℃ |
| 聚偏二氟乙烯(PVDF) |
40℃~+150℃ |
|
|
1.材料的結晶度高
由單一聚丙烯單體聚合而成,分子鏈中不含乙烯單體;分子鏈的整規度高,長久的使用壽命;
2.耐腐蝕性能好
可在一定范圍內承受PH值范圍在1-14的高濃度酸和堿的腐蝕;
3.耐熱保溫節能
適用的溫度范圍從-20℃到110℃;導熱系數小,具有較好的保溫性能;
4.可靠的連接性能
該產品熱熔接口的強度高于管材本體,接縫不會由于土壤移動或載荷作用而斷開;
5.良好的施工性能
該產品質輕,焊接工藝簡單,施工方便,工程綜合造價低,能滿足復雜的工藝管道;PPH管道系統廣泛應用于電鍍、蝕刻、化工、制藥、污水處理、環境工程等行業。

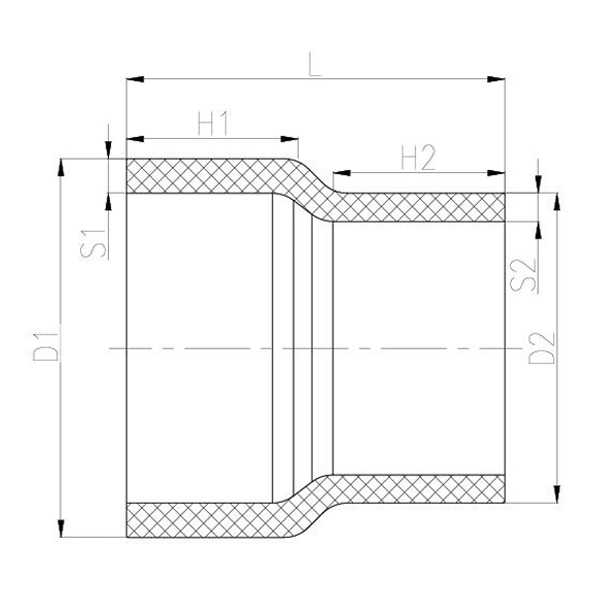
| 公稱直徑DN |
D1 |
S1 |
? D2 |
S2 |
L |
H1 |
H2 |
| 150*65 |
160? |
14.6? |
? 75? |
6.8? |
162? |
40? |
61? |
| 150*80 |
160? |
14.6? |
? 90? |
8.2? |
159? |
40? |
61? |
| 150*100 |
160? |
14.6? |
? 110? |
10? |
153? |
40? |
61? |
| 150*125 |
160? |
14.6? |
? 140? |
12.7? |
146? |
40? |
61? |
| 200*80 |
225? |
20.5? |
? 90? |
8.2? |
200? |
55? |
62? |
| 200*100 |
225? |
20.5? |
? 110? |
10? |
194? |
55? |
62? |
| 200*125 |
225? |
20.5? |
? 140? |
12.7? |
187? |
55? |
62? |
| 200*150 |
225? |
20.5? |
? 160? |
14.6? |
182? |
55? |
62? |
| 250*100 |
280? |
25.4? |
? 110? |
10? |
234? |
70? |
62? |
| 250*125 |
280? |
25.4? |
? 140? |
12.7? |
227? |
70? |
62? |
| 250*150 |
280? |
25.4? |
? 160? |
14.6? |
222? |
70? |
62? |
| 250*200 |
280? |
25.4? |
? 225? |
20.5? |
207? |
70? |
62? |
| 300*150 |
315? |
28.6? |
? 160? |
14.6? |
247? |
80? |
62? |
| 300*200 |
315? |
28.6? |
? 225? |
20.5? |
232? |
80? |
62? |
| 300*250 |
315? |
28.6? |
? 280? |
25.4? |
225? |
80? |
70? |
| 公稱直徑DN |
D1 |
S1 |
? D2 |
S2 |
L |
H1 |
H2 |
| 20*15 |
25? |
2.3? |
? 20? |
2? |
93? |
45? |
45? |
| 25*15 |
32? |
2.9? |
? 20? |
2? |
96? |
45? |
45? |
| 25*20 |
32? |
2.9? |
? 25? |
2.3? |
94? |
45? |
45? |
| 32*15 |
40? |
3.7? |
? 20? |
2? |
100? |
45? |
45? |
| 32*20 |
40? |
3.7? |
? 25? |
2.3? |
98? |
45? |
45? |
| 32*25 |
40? |
3.7? |
? 32? |
2.9? |
94? |
45? |
45? |
| 40*15 |
50? |
4.6? |
? 20? |
2? |
105? |
45? |
45? |
| 40*20 |
50? |
4.6? |
? 25? |
2.3? |
102.5? |
45? |
45? |
| 40*25 |
50? |
4.6? |
? 32? |
2.9? |
99? |
45? |
45? |
| 40*32 |
50? |
4.6? |
? 40? |
3.7? |
95? |
45? |
45? |
| 50*20 |
63? |
5.8? |
? 25? |
2.3? |
109? |
45? |
45? |
| 50*25 |
63? |
5.8? |
? 32? |
2.9? |
105.5? |
45? |
45? |
| 50*32 |
63? |
5.8? |
? 40? |
3.7? |
101.5? |
45? |
45? |
| 50*40 |
63? |
5.8? |
? 50? |
4.6? |
96.5? |
45? |
45? |
| 65*25 |
75? |
6.8? |
? 32? |
2.9? |
121.5? |
50? |
50? |
| 65*32 |
75? |
6.8? |
? 40? |
3.7? |
117.5? |
50? |
50? |
| 65*40 |
75? |
6.8? |
? 50? |
4.6? |
112.5? |
50? |
50? |
| 65*50 |
75? |
6.8? |
? 63? |
5.8? |
106? |
50? |
50? |
| 80*32 |
90? |
8.2? |
? 40? |
3.7? |
125? |
50? |
50? |
| 80*40 |
90? |
8.2? |
? 50? |
4.6? |
120? |
50? |
50? |
| 80*50 |
90? |
8.2? |
? 63? |
5.8? |
113.5? |
50? |
50? |
| 80*65 |
90? |
8.2? |
? 75? |
6.8? |
107.5? |
50? |
50? |
| 100*40 |
110? |
10? |
? 50? |
4.6? |
130? |
50? |
50? |
| 100*50 |
110? |
10? |
? 63? |
5.8? |
123.5? |
50? |
50? |
| 100*65 |
110? |
10? |
? 75? |
6.8? |
117.5? |
50? |
50? |
| 100*80 |
110? |
10? |
? 90? |
8.2? |
110? |
50? |
50? |
| 125*50 |
140? |
12.7? |
? 63? |
5.8? |
155? |
35? |
61? |
| 125*65 |
140? |
12.7? |
? 75? |
6.8? |
152? |
35? |
61? |
| 125*80 |
140? |
12.7? |
? 90? |
8.2? |
149? |
35? |
61? |
| 125*100 |
140? |
12.7? |
? 110? |
10? |
143? |
35? |
61? |
| 150*50 |
160? |
14.6? |
? 63? |
5.8? |
165? |
40 |
61 |