| 材料 |
?????? 介質溫度℃ |
材料 |
介質溫度℃ |
| 氯化聚氯乙烯(PVC-C) |
-20℃~+95℃ |
聚氯乙烯(PVC-U) |
-5℃~+45℃ |
| 增強聚丙烯(FRPP) |
-20℃~+120℃ |
均聚聚丙烯(PPH) |
-20℃~+110℃ |
| 聚偏二氟乙烯(PVDF) |
40℃~+150℃ |
|
|
1.耐熱性佳并有高介電強度
PVDF分子結構規整性較大,分子中氟原子和氯原子大小相似,高分子鏈的排列緊密,并存在著較強的氫鍵效應,因此聚合物的拉伸強度,壓縮強度及沖擊韌性等都比較大。此外PVDF的熔點在170℃左右,加工性能良好,方便成型;
2.耐磨,高機械強度及韌度
在氟塑料中具有韌性,低摩擦系數、耐老化性有很強的耐磨性和抗沖擊性能,而且在嚴酷與惡劣的環境中有很高的抗褪色性與抗紫外線性能;
3.耐候,抗紫外線及核射線
高純凈度,有良好的化學穩定性,耐腐蝕性、耐高溫性、高阻隔性、耐氧化性、耐候性、耐射線輻射性能外,還具有壓電性、介電性、熱電性等特殊性能;
4.應用范圍廣泛
PVDF管道系統廣泛應用于石油化工、電子電氣、氟碳涂料、核工電力項目、半導體工業上和石化工業上的高純化學品的貯存和輸送。

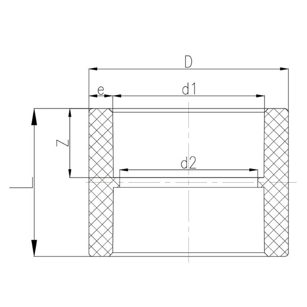
| 公稱直徑DN |
D |
d1 |
d2 |
L |
Z |
e |
| 15? |
26? |
20? |
16? |
33.5? |
15? |
3? |
| 20? |
31? |
25? |
20? |
39.5? |
18? |
3? |
| 25? |
38.5? |
32? |
26? |
44? |
20.5? |
3.2? |
| 32? |
50? |
40? |
34? |
47.5? |
22? |
5? |
| 40? |
63.5? |
50? |
44? |
53.5? |
24.5? |
6.7? |
| 50? |
80? |
63? |
56? |
59? |
27.5? |
8.5? |
| 65? |
91.5? |
75? |
67? |
69? |
30.5? |
8.2? |
| 80? |
110? |
90? |
80? |
80? |
34.5? |
10? |
| 100? |
131.5? |
110? |
100? |
95? |
40.5? |
10.7? |