| 材料 |
?????? 介質溫度℃ |
材料 |
介質溫度℃ |
| 氯化聚氯乙烯(PVC-C) |
-20℃~+95℃ |
聚氯乙烯(PVC-U) |
-5℃~+45℃ |
| 增強聚丙烯(FRPP) |
-20℃~+120℃ |
均聚聚丙烯(PPH) |
-20℃~+110℃ |
| 聚偏二氟乙烯(PVDF) |
40℃~+150℃ |
|
|
1.抗化學性優越:使用溫度范圍廣﹣20℃—95℃,介質中重離子含量達超純水標準;衛生性能符合國家衛生標準要求;
2.具有優良的強度、韌性以及耐化學腐蝕性能;
3.耐用:優異的耐老化和抗紫外線性能,使正常使用壽命比其他管道系統均有很大的延長;
4.低熱傳導性能:約為鋼材的1/200;阻燃性能為自熄性;
5.輕便:重量輕,相當于鋼管1/5,銅管的1/6;
6.阻力小,流率高:管壁平潔光滑,輸送流體時具有較小的摩擦阻力和附著力;
7.安裝簡易,成本低廉:可采用粘接、螺紋等方式連接,而簡便的是膠水連接。

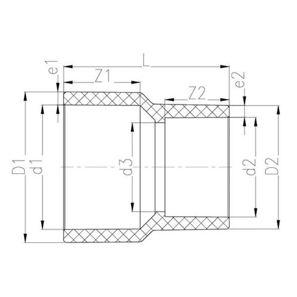
公稱直徑 DN |
D1 |
D2 |
d1 |
d2 |
d3 |
L |
Z1 |
Z2 |
e1 |
e2 |
| 300*200 |
351? |
251? |
315? |
225? |
219? |
325? |
163.5? |
118.5? |
18? |
13? |
| 300*250 |
351? |
310? |
315? |
280? |
274? |
336.5? |
163.5? |
146? |
18? |
15? |
| 350*150 |
390? |
184? |
355? |
160? |
154? |
343? |
184? |
86? |
17.5? |
12? |
| 350*200 |
390? |
249? |
355? |
225? |
214? |
359? |
184? |
119? |
17.5? |
12? |
| 350*250 |
390? |
308? |
355? |
280? |
270? |
370? |
184? |
146? |
17.5? |
14? |
| 350*300 |
390? |
346? |
355? |
315? |
304? |
378? |
184? |
164? |
17.5? |
15.5? |
| 400*200 |
440? |
249? |
400? |
225? |
214? |
394? |
206? |
119? |
20? |
12? |
| 400*250 |
440? |
308? |
400? |
280? |
270? |
405? |
206? |
146? |
20? |
14? |
| 400*300 |
440? |
346? |
400? |
315? |
304? |
413? |
206? |
164? |
20? |
15.5? |
| 400*350 |
440? |
390? |
400? |
355? |
340? |
423? |
206? |
184? |
20? |
17.5? |
| 450*300 |
494? |
346? |
450? |
315? |
304? |
454? |
231? |
164? |
22? |
15.5? |
| 450*350 |
494? |
390? |
450? |
355? |
340? |
463? |
231? |
184? |
22? |
17.5? |
| 450*400 |
494? |
440? |
450? |
400? |
386? |
472? |
231? |
206? |
22? |
20? |
| 500*300 |
548? |
346? |
500? |
315? |
304? |
494? |
256? |
164? |
24? |
15.5? |
| 500*350 |
548? |
390? |
500? |
355? |
340? |
504? |
256? |
184? |
24? |
17.5? |
| 500*400 |
548? |
440? |
500? |
400? |
386? |
513? |
256? |
206? |
24? |
20? |
| 500*450 |
548? |
494? |
500? |
450? |
430? |
525? |
256? |
231? |
24? |
22? |
| 600*300 |
692? |
346? |
630? |
315? |
304? |
600? |
321? |
164? |
31? |
15.5? |
| 600*350 |
692? |
390? |
630? |
355? |
340? |
609? |
321? |
184? |
31? |
17.5? |
| 600*400 |
692? |
440? |
630? |
400? |
386? |
618? |
321? |
206? |
31? |
20? |
| 600*450 |
692? |
494? |
630? |
450? |
430? |
630? |
321? |
231? |
31? |
22? |
| 600*500 |
692? |
548? |
630? |
500? |
480? |
641? |
321? |
256? |
31? |
24? |
| 公稱直徑DN |
D1 |
D2 |
d1 |
d2 |
d3 |
L |
Z1 |
Z2 |
e1 |
e2 |
| 20*15 |
32? |
27? |
25? |
20? |
16? |
42? |
19? |
16? |
3.5? |
3.5? |
| 25*15 |
40? |
27? |
32? |
20? |
16? |
48.5? |
22? |
16? |
4? |
3.5? |
| 25*20 |
40? |
32? |
32? |
25? |
21? |
49? |
22? |
19? |
4? |
3.5? |
| 32*20 |
50? |
32? |
40? |
25? |
21? |
57? |
26? |
19? |
5? |
3.5? |
| 32*25 |
50? |
40? |
40? |
32? |
28? |
57? |
26? |
22? |
5? |
4? |
| 40*25 |
61? |
40? |
50? |
32? |
28? |
67? |
31? |
22? |
5.5? |
4? |
| 40*32 |
61? |
50? |
50? |
40? |
36? |
67? |
31? |
26? |
5.5? |
5? |
| 50*25 |
75? |
40? |
63? |
32? |
28? |
80.5? |
38? |
22? |
6? |
4? |
| 50*32 |
75? |
50? |
63? |
40? |
36? |
80.5? |
38? |
26? |
6? |
5? |
| 50*40 |
75? |
61? |
63? |
50? |
45? |
81? |
38? |
31? |
6? |
5.5? |
| 65*25 |
88? |
40? |
75? |
32? |
28? |
93.5? |
44? |
22? |
6.5? |
4? |
| 65*32 |
88? |
50? |
75? |
40? |
36? |
93.5? |
44? |
26? |
6.5? |
5? |
| 65*40 |
88? |
61? |
75? |
50? |
45? |
94? |
44? |
31? |
6.5? |
5.5? |
| 65*50 |
88? |
75? |
75? |
63? |
58? |
95? |
44? |
38? |
6.5? |
6? |
| 80*25 |
105? |
40? |
90? |
32? |
28? |
108? |
51? |
22? |
7.5? |
4? |
| 80*32 |
105? |
50? |
90? |
40? |
36? |
108? |
51? |
26? |
7.5? |
5? |
| 80*40 |
105? |
61? |
90? |
50? |
45? |
108.5? |
51? |
31? |
7.5? |
5.5? |
| 80*50 |
105? |
75? |
90? |
63? |
58? |
109.5? |
51? |
38? |
7.5? |
6? |
| 80*65 |
105? |
88? |
90? |
75? |
69? |
110.5? |
51? |
44? |
7.5? |
6.5? |
| 100*40 |
127? |
61? |
110? |
50? |
45? |
130? |
61? |
31? |
8.5? |
5.5? |
| 100*50 |
127? |
75? |
110? |
63? |
58? |
130? |
61? |
38? |
8.5? |
6? |
| 100*65 |
127? |
88? |
110? |
75? |
69? |
130? |
61? |
44? |
8.5? |
6.5? |
| 100*80 |
127? |
105? |
110? |
90? |
84? |
130? |
61? |
51? |
8.5? |
7.5? |
| 125*50 |
161? |
75? |
140? |
63? |
58? |
143? |
76? |
38? |
10.5? |
6? |
| 125*65 |
161? |
88? |
140? |
75? |
69? |
146? |
76? |
44? |
10.5? |
6.5? |
| 125*80 |
16? |
1 105 |
140? |
90? |
82? |
149? |
76? |
51? |
10.5? |
7.5? |
| 125*100 |
161? |
127? |
140? |
110? |
102? |
154? |
76? |
61? |
10.5? |
8.5? |
| 150*65 |
184? |
88? |
60? |
75? |
69? |
162? |
86? |
44? |
12? |
6.5? |
| 150*80 |
184? |
105? |
160? |
90? |
82? |
165? |
86? |
51? |
12? |
7.5? |
| 150*100 |
184? |
127? |
160? |
110? |
102? |
170? |
86? |
61? |
12? |
8.5? |
| 150*125 |
184? |
161? |
160? |
140? |
130? |
176? |
86? |
76? |
12? |
10.5? |
| 200*80 |
260? |
105? |
225? |
90? |
82? |
217? |
119? |
51? |
17.5? |
7.5? |
| 200*100 |
260? |
127? |
225? |
110? |
102? |
221? |
119? |
61? |
17.5? |
8.5? |
| 200*125 |
260? |
161? |
225? |
140? |
130? |
228? |
119? |
76? |
17.5? |
10.5? |
| 200*150 |
260? |
184? |
225? |
160? |
150? |
233? |
119? |
86? |
17.5? |
12? |
| 250*200(Φ250*225) |
288? |
260? |
250? |
225? |
218? |
265? |
131? |
119? |
19? |
17.5? |
| 250*100(Φ280*110) |
310? |
127? |
280? |
110? |
105? |
272.5? |
146? |
61? |
15? |
8.5? |
| 250*125(Φ280*140) |
310? |
160? |
280? |
140? |
135? |
278? |
146? |
76? |
15? |
10? |
| 250*150(Φ280*160) |
310? |
180? |
280? |
160? |
155? |
283? |
146? |
86? |
15? |
12? |
| 250*200(Φ280*225) |
310? |
251? |
280? |
225? |
220? |
297? |
146? |
118.5? |
15? |
13? |
| 300*100 |
351? |
127? |
315? |
110? |
105? |
300.5? |
163.5? |
61? |
18? |
8.5? |
| 300*125 |
351? |
160? |
315? |
140? |
135? |
307? |
163.5? |
76? |
18? |
10? |
| 300*150 |
351? |
180? |
315? |
160? |
154? |
311.5163.5 |
86? |
18? |
10? |