| 材料 |
?????? 介質溫度℃ |
材料 |
介質溫度℃ |
| 氯化聚氯乙烯(PVC-C) |
-20℃~+95℃ |
聚氯乙烯(PVC-U) |
-5℃~+45℃ |
| 增強聚丙烯(FRPP) |
-20℃~+120℃ |
均聚聚丙烯(PPH) |
-20℃~+110℃ |
| 聚偏二氟乙烯(PVDF) |
40℃~+150℃ |
|
|
1.耐熱性佳并有高介電強度
PVDF分子結構規整性較大,分子中氟原子和氯原子大小相似,高分子鏈的排列緊密,并存在著較強的氫鍵效應,因此聚合物的拉伸強度,壓縮強度及沖擊韌性等都比較大。此外PVDF的熔點在170℃左右,加工性能良好,方便成型;
2.耐磨,高機械強度及韌度
在氟塑料中具有韌性,低摩擦系數、耐老化性有很強的耐磨性和抗沖擊性能,而且在嚴酷與惡劣的環境中有很高的抗褪色性與抗紫外線性能;
3.耐候,抗紫外線及核射線
高純凈度,有良好的化學穩定性,耐腐蝕性、耐高溫性、高阻隔性、耐氧化性、耐候性、耐射線輻射性能外,還具有壓電性、介電性、熱電性等特殊性能;
4.應用范圍廣泛
PVDF管道系統廣泛應用于石油化工、電子電氣、氟碳涂料、核工電力項目、半導體工業上和石化工業上的高純化學品的貯存和輸送。

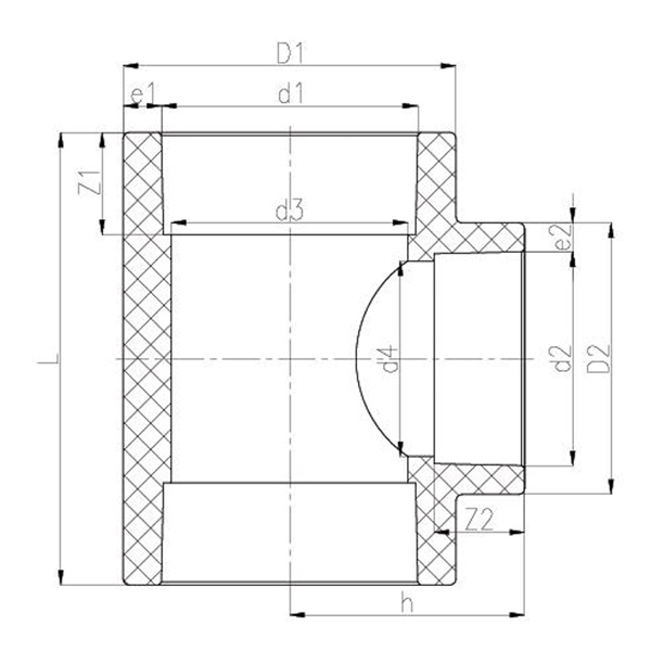
| 公稱直徑DN |
D1 |
D2 |
d1 |
d2 |
? d3 |
d4 |
L |
h |
Z1 |
Z2 |
e1 |
e2 |
| 20*15 |
35? |
29? |
25? |
20? |
? 20? |
16? |
60? |
29? |
18? |
15? |
5? |
4.5? |
| 25*15 |
43? |
29? |
32? |
20? |
? 26? |
16? |
64? |
32? |
20? |
15? |
5.5? |
4.5? |
| 25*20 |
43? |
35? |
32? |
25? |
? 26? |
20? |
68? |
35? |
20? |
18? |
5.5? |
5? |
| 32*15 |
51? |
29? |
40? |
20? |
? 34? |
16? |
70? |
37? |
22? |
15? |
5.5? |
4.5? |
| 32*20 |
51? |
35? |
40? |
25? |
? 34? |
20? |
74? |
40? |
22? |
18? |
5.5? |
5? |
| 32*25 |
51? |
43? |
40? |
32? |
? 34? |
26? |
80? |
42? |
22? |
20? |
5.5? |
5.5? |
| 40*15 |
64? |
29? |
50? |
20? |
? 44? |
16? |
76? |
43? |
24? |
15? |
7? |
4.5? |
| 40*20 |
64? |
35? |
50? |
25? |
? 44? |
20? |
80? |
46? |
24? |
18? |
7? |
5? |
| 40*25 |
64? |
43? |
50? |
32? |
? 44? |
26? |
86? |
48? |
24? |
20? |
7? |
5.5? |
| 40*32 |
64? |
51? |
50? |
40? |
? 44? |
34? |
94? |
50? |
24? |
22? |
7? |
5.5? |
| 50*25 |
81? |
43? |
63? |
32? |
? 57? |
26? |
94? |
54.5? |
28? |
20? |
9? |
5.5? |
| 50*32 |
81? |
51? |
63? |
40? |
? 57? |
34? |
102? |
56.5? |
28? |
22? |
9? |
5.5? |
| 50*40 |
81? |
64? |
63? |
50? |
? 57? |
44? |
112? |
58.5? |
28? |
24? |
9? |
7? |
| 65*25 |
93? |
43? |
75? |
32? |
? 67? |
26? |
103? |
61? |
31? |
20? |
9? |
5.5? |
| 65*32 |
93? |
51? |
75? |
40? |
? 67? |
34? |
111? |
63? |
31? |
22? |
9? |
5.5? |
| 65*40 |
93? |
64? |
75? |
50? |
? 67? |
44? |
121? |
65? |
31? |
24? |
9? |
7? |
| 65*50 |
93? |
81? |
75? |
63? |
? 67? |
57? |
134? |
69? |
31? |
28? |
9? |
9? |
| 80*40 |
114? |
64? |
90? |
50? |
? 81? |
44? |
132? |
73.5? |
35? |
24? |
12? |
7? |
| 80*50 |
114? |
81? |
90? |
63? |
? 81? |
57? |
145? |
77.5? |
35? |
28? |
12? |
9? |
| 80*65 |
114? |
93? |
90? |
75? |
? 81? |
67? |
155? |
80.5? |
35? |
31? |
12? |
9? |
| 100*25 |
134? |
43? |
110? |
32? |
? 100? |
27? |
131? |
80? |
42? |
20? |
12? |
5.5? |
| 100*32 |
134? |
51? |
110? |
40? |
? 100? |
34? |
138? |
82? |
42? |
22? |
12? |
5.5? |
| 100*40 |
134? |
64? |
110? |
50? |
? 100? |
44? |
146? |
84? |
41? |
24? |
12? |
7? |
| 100*50 |
134? |
81? |
110? |
63? |
? 100? |
57? |
159? |
88? |
41? |
28? |
12? |
9? |
| 100*65 |
134? |
93? |
110? |
75? |
? 100? |
67? |
169? |
91? |
41? |
31? |
12? |
9? |
| 100*80 |
134? |
114? |
110? |
90? |
? 100? |
81? |
183? |
95? |
41? |
35? |
12? |
12? |